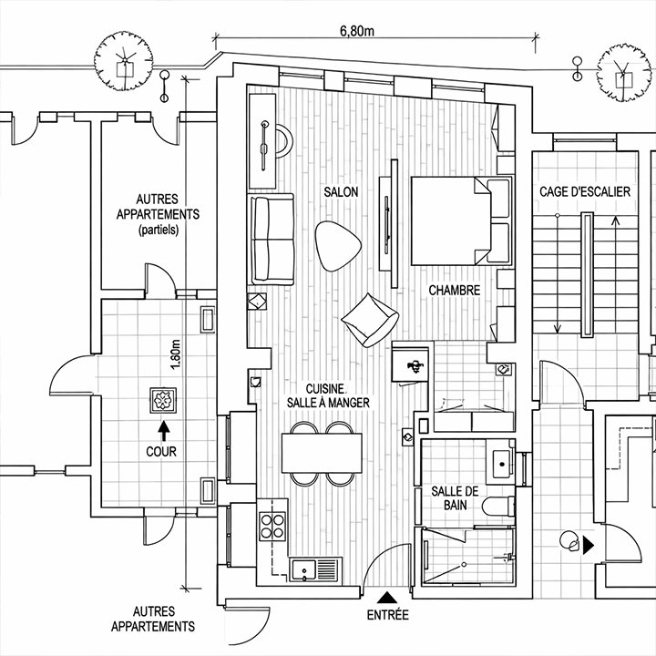
Ce projet concerne la rénovation complète d’un ancien studio, initialement composé d’une pièce unique avec une salle de bain indépendante. L’enjeu principal était de transformer ce volume ouvert en un espace de vie adapté à un couple, tout en conservant la sensation d’amplitude et de luminosité propre au lieu.

Afin d’introduire une véritable distinction entre les fonctions jour et nuit, une cloison a été créée entre le salon et la chambre. Plutôt que d’ériger un mur plein qui aurait fragmenté l’appartement et privé la chambre de lumière naturelle, le choix s’est porté sur une séparation ajourée et partiellement ouverte. Cette solution permet de structurer l’espace, d’assurer une circulation fluide et de préserver la continuité visuelle. La lumière traverse ainsi l’ensemble du volume, renforçant la perception de profondeur.

Un renfoncement existant a été optimisé pour accueillir un dressing sur mesure, offrant un espace de rangement fonctionnel et discret. Cette intervention permet de libérer la pièce principale de tout encombrement et de garantir un confort d’usage quotidien.

La rénovation s’inscrit dans le respect du caractère de l’immeuble ancien, où les possibilités de transformation structurelle étaient limitées. Le projet a donc privilégié des interventions ciblées et intelligentes : création d’une cloison, réorganisation des fonctions, optimisation des volumes et travail sur les matériaux et la lumière.

L’ensemble compose aujourd’hui un appartement cohérent, chaleureux et adapté à la vie à deux, où chaque mètre carré est valorisé sans compromettre l’équilibre spatial initial.

architecte :
Studio Nobili
Type de Projet :
Interior Design
client:
Delphine B.
strategie :
Fonctionnalité
durée :
2 mois
date:
November 22, 2020
architect:
David Oswald
project type:
Interior Design
Terms:
6 month
client:
OceanThemes
Strategy:
Minimalistic
date:
November 22, 2020